
visibility24
-
Кононов Александр
- location_on Россия / Москва
- location_city Москва
![]()
visibility31
favorite_border
|
РКД на дисковые затворы двухэксцентриковые общепромышленны, так на 2 и 3 класс безопасности АЭСКононов Александр
24 сентября 2025 г. в 08:03
Москва
visibility31
favorite_border
Все вопросы в личные сообщения.
Продам или разработаю под ваши требования РКД на дисковые затворы с двойным эксцентриситетом от DN 150 до DN 2000 на PN от 0,1 МПа до 1,6 МПа.
visibility31
favorite_border
|
![]()
visibility58
favorite_border
|
Чертежи (РКД) на устьевую и фонтанную арматуруКононов Александр
23 сентября 2025 г. в 08:21
Москва
visibility58
favorite_border
Продам имеющиеся КД или разработаю аналогичное, но под ваши требования Могу предложить:
Адаптеры, катушки; Арматура для проведения ГРП; АТП; АУШГП, АУЭЦН, АУД, АШКЭ; АФ, АФК, АНК; Башмаки; Вентили; Дроссели; Задвижки; Кабельные вводы и АГКВ Клапаны Краны шаровые КШД Лубрикаторы Манифольды буровые МБ-2У Манифольды ПВО Манифольды АФ МУО Нагнетатели смазки ОК, ОКР ОКК ОКО Патрубки, муфты переводники Разделители сред БРС Устьевое оборудование Фитинги Фланцы колонные, превенторные и др.; Центраторы ЦКОДМ ЦКОДП Штуцеры регулир и нерегул
visibility58
favorite_border
|
![]()
visibility28
favorite_border
|
Чертежи (РКД) на клиновые задвижки разработаю (продам имеющиеся)Кононов Александр
21 сентября 2025 г. в 19:58
Москва
visibility28
favorite_border
Чертежи (РКД) на клиновые задвижки продам имеющиеся, разработаю под ваши требования.
Стоимость: - готовые 250'000 руб. - разработанные по ваши требованиям 350'000 руб. Сроки: - готовые до 1 мес. (сканы) - редактируемый формат (Компас) от 1 мес. до 3 мес. - под ваши требования от 3 мес. до 4 мес. В наличии: - DN 100, 150, 200, 250, 300, 350, 400, 500, 600, 700, 800, 1000 и 1200; - PN 1,6; 2,5; 4,0; 6,3; 8,0; 10,0. По всем вопросам пишите на почту.
visibility28
favorite_border
|
![]()
visibility110
favorite_border
|
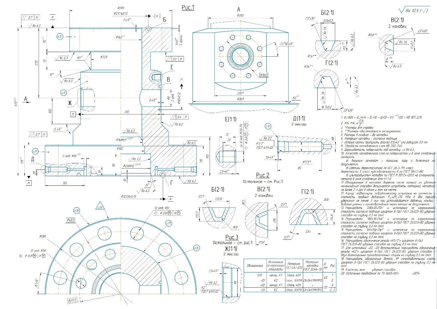
Разработка ремонтной документации ТПА для АЭСКононов Александр
19 сентября 2025 г. в 13:15
Москва
visibility110
favorite_border
Разработаю комплект ремонтной документации ТПА для АЭС (УК, УС, РК, РС, ВРК, ЗИК) в соответствии с:
- ГОСТ 2.602 - ЕСКД. Ремонтные документы - ГОСТ 2.604 - ЕСКД. Чертежи ремонтные; - ОСТ 1.1.1.01.003.1075-2015 - технические условия на ремонт оборудования АЭС; - ОСТ 1.1.1.01.003.1024-2015 -технологическая документация (КТД) на ремонт оборудования АЭС. Срок от 1,5 до 3 месяцев. Стоимость от 150'000 руб. за комплект. С картами дефектации.
visibility110
favorite_border
|
![]()
visibility34
favorite_border
|
Чертежи РКД на обратные затворыКононов Александр
19 сентября 2025 г. в 07:48
Москва
visibility34
favorite_border
Имеется РКД на обратные затворы от DN 150 до DN 800 и PN16, PN 25. Штампованная конструкция.
Готов разработать аналогичные чертежи, но с вашими требованиями. Смотрите другие мои объявления https://armaturka.ru/sell/66976
visibility34
favorite_border
|
![]()
visibility16
favorite_border
|
Разработка технической документации ТУ, ПС, РЭ, ПМИ, РР, ОБ, УК, РК, КТДКононов Александр
18 сентября 2025 г. в 09:13
Москва
visibility16
favorite_border
Разработаю под вас техническую документацию на:
- шаровые краны; - дисковые затворы; и т.д. В том числе на основе документов Газпрома, Транснефти, Росатома и др организаций. Срок от 1 месяца. Стоимость комплекта документов для получения сертификата ТР ТС 032, 010 и 012 от 100'000 руб.
visibility16
favorite_border
|